FREMONT CITY SCHOOLS
Roscoe the Little Giant
Ross Safety Connector Project

Project Update

Fremont City Schools is excited to share an update on the Safety Connector Project that is being constructed on the campus of Ross High School.

With the support of our community, we began planning for a safe passage between the existing Natatorium and Ross High School with the passage of our levy in 2017. A temporary connector was established after the District was informed that we could not permanently connect the buildings until the OFCC project was completed. In the fall of 2024, the financial portion of the building project was finally completed and we began thinking about the next steps.

Our natatorium is the home of thriving swim and wrestling programs. FCS engages approximately 145 student-athletes in grades 7-12 and approximately 50 students who are involved in biddy programs that provide access to learning their sport. We host events that draw individuals from across the state and beyond.

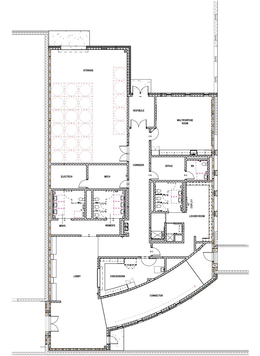
Meetings that included a variety of district and building staff were held and it was decided to include aspects that would help FCS meet the current needs. We celebrate with the entire Fremont community the inclusion of a concessions stand, a locker room and coaches' space for our female wrestling team, storage area for our wrestling mats, additional public restrooms to be used during events, and a multipurpose room housed within the Safety Connector Project.

We will keep the community updated as we continue to take big steps to be amazing Little Giants!


Building Floor Plan

Architectural render floor plan of the Fremont Ross Safety Connector